From Design to Reality: Understanding the Landscape Installation Process

A landscaping project in progress in Toronto

Landscape installation is more than just planting a few trees and laying down sod. It's a comprehensive process that transforms your outdoor space into a beautiful and functional environment. If you're considering a landscape installation for your property, it's essential to understand the steps involved. This guide will walk you through the entire process, from the initial consultation to the final touches, so you know exactly what to expect.

1. Initial Consultation

The journey begins with a one-on-one consultation. During this meeting, you'll discuss your vision, preferences, and budget with a landscape designer. They'll assess your property, take measurements, and ask questions to understand your needs and desires. This is the perfect time to share any inspiration photos or specific plants you'd like to incorporate.

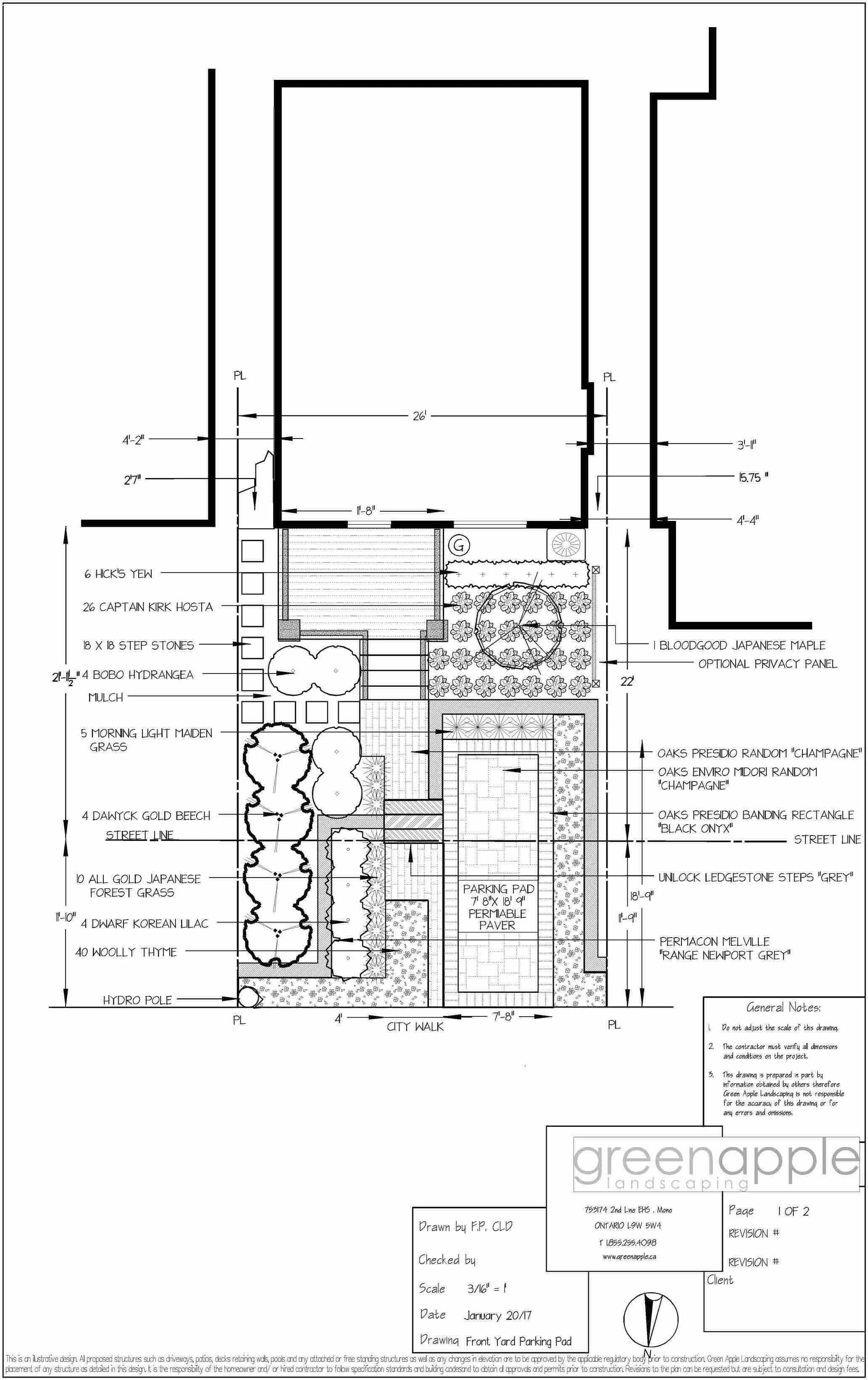
2. Design Phase

After gathering all the necessary information, the designer will create a detailed scaled landscape plan. This plan will outline the placement of plants, pathways, driveways, water features, fire features, and other elements. You'll have the opportunity to review the design, provide feedback, and make any necessary adjustments. The goal is to ensure the final design aligns perfectly with your vision.

Before picture of existing front yard landscape

Before: The designer will measure your space for the landscape plan.

3D rendering of a landscape design for a parking pad

Our designer will make a detailed landscape plan. You can also get 3D renderings of your landscape design.

2D landscape plan of a parking pad

2D landscape plan showing all hardscape and soft landscaping features

3. Cost Estimation

Once the design is finalised and approved, you'll receive a detailed cost estimate spreadsheet giving you good, better, best scenarios, utilising different material choices . Transparency is key, so don't hesitate to ask questions or seek clarifications in the Zoom presentation meeting.

Spreadsheet showing pricing of landscape project

Pricing spreadsheet showing quotes for various materials for the landscape project.

4. Book Your Project

After deciding on the exact scope of work that meets your budget, a detailed written build contract is prepared for your review and signature. A small deposit given to secure your place in our schedule.

5. Installation

This is where the magic happens! The installation team will bring the design to life, meticulously placing each plant, constructing pathways, setting up irrigation systems, and more. Depending on the complexity of the design, this phase can take anywhere from a few days to several weeks.

6. Maintenance and Aftercare

The journey doesn't end once the installation is complete. To keep your landscape looking its best, we will give you maintenance information customized to your project, and watering instructions, and we will be around for questions you may have any time.


Ready to transform your outdoor space? Let us craft a modern, low-maintenance landscape designed to fit your lifestyle and elevate your home. Schedule a consultation today!

book a consultation
Bonnie Summerfeldt

A former print magazine art director who helps other savvy professionals get more credibility and confidence online with personal branding and Squarespace websites.

https://bsdesign.ca/
Previous
Previous

8 Reasons to Update Your Landscaping

Next
Next

Outdoor Living Rooms: Bringing Indoor Comfort Outside